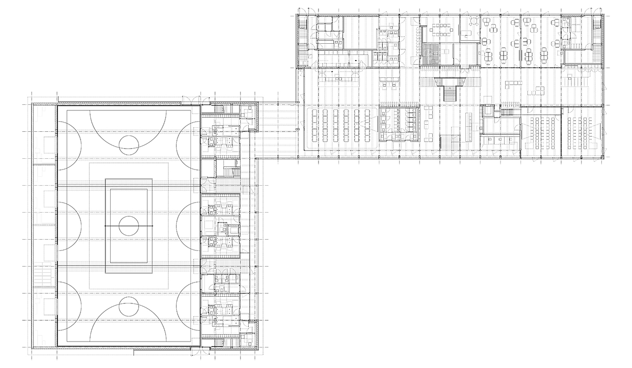
BQA Witten. Der Entwurf reagiert auf eine komplexe städtebauliche wie topografische Situation im Zentrum des Stadtteils Annen durch die Anordnung zweier im rechten Winkel zueinander stehender Baukörper, die obergeschossig miteinander verbunden sind. Neben einer in die Hangkante geschobenen Dreifachsporthalle mit Tribüne bildet das Bildungsquartier das eigentliche Herz der Bauaufgabe und des zukünftigen Lebens im Quartier.  

Von einer zweizügigen Grundschule überbaut, bietet das Bildungsquartier Räume für den offenen Ganztagsbetrieb, eine Mensa, Gruppen- und Veranstaltungsräume für die Bevölkerung sowie Räumlichkeiten für verschiedene Akteure und Vereine vor Ort.

1 . Preis Wettbewerb . 2019
Fertigstellung . 2024
Auftrag . LPH 1-9
Bauherr . Stadt Witten



. Erdgeschoß

..  Schnitt Ansicht

... Foyer Sporthalle

.... Blicke zum Quartiersplatz

..... Foyer Bildungsquartier