Multifunktionsgebäude für die Bad Hersfelder Festspiele
 

Die Stadt Bad Hersfeld beabsichtigt die Errichtung eines multifunktionalen Gebäudes für die Festspiele auf dem Gelände des ehemaligen Stiftsbezirks. Die historische Bedeutsamkeit des Ortes istl die Grundlage zu der nachfolgenden beschriebenen stadtplanerischen Leitidee.

Die Setzung des Neubaus nimmt auf die vorgenannten Rahmenbedingungen Bezug, indem sich das Gebäude auf dem Fußabdruck des abzureißenden Bestandsgebäudes platziert und somit kein weiterer Eingriff in das Denkmal vorgenommen wird. Eine vermittelnde, dem Ort in jeder Hinsicht angemessene Architektur entsteht. Übergänge von öffentlichen zu halböffentlichen Räumen werden klar definiert und in der Architektur zum Ausdruck gebracht. Der vorhandene Ort wird behutsam weiterentwickelt, gestärkt und eine neue, für die Zukunft gerüstete, Gebrauchsarchitektur entsteht. Die geistige und zentrale Mitte der Stiftsruine wird durch das Anfügen der neuen dienenden Räume komplettiert und ein für die Mitarbeiter lebendiger Ort entsteht.

 

Wettbewerb . 2020

Auslober . Stadt Bad Hersfeld

 

 

 

. Ansicht

.. Perspektive

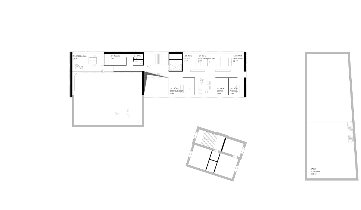
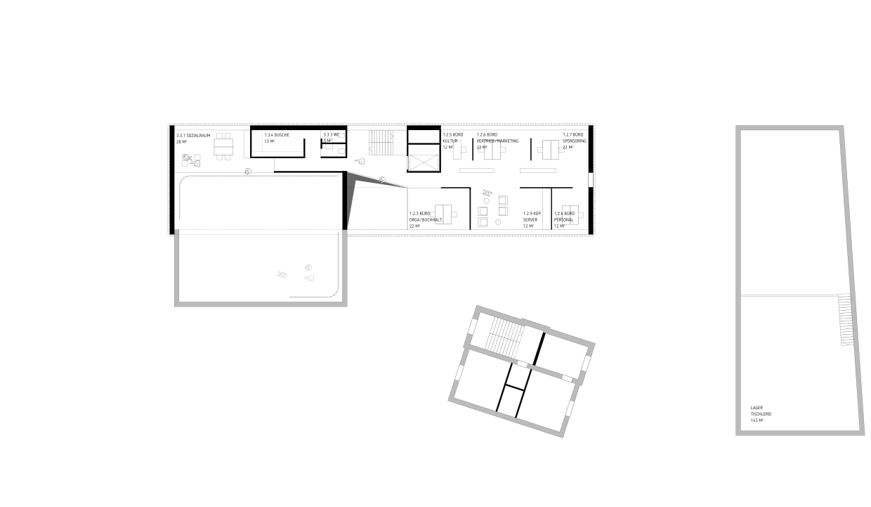
... Erdgeschoss

.... Obergschoss

..... Lageplan

...... Ansicht