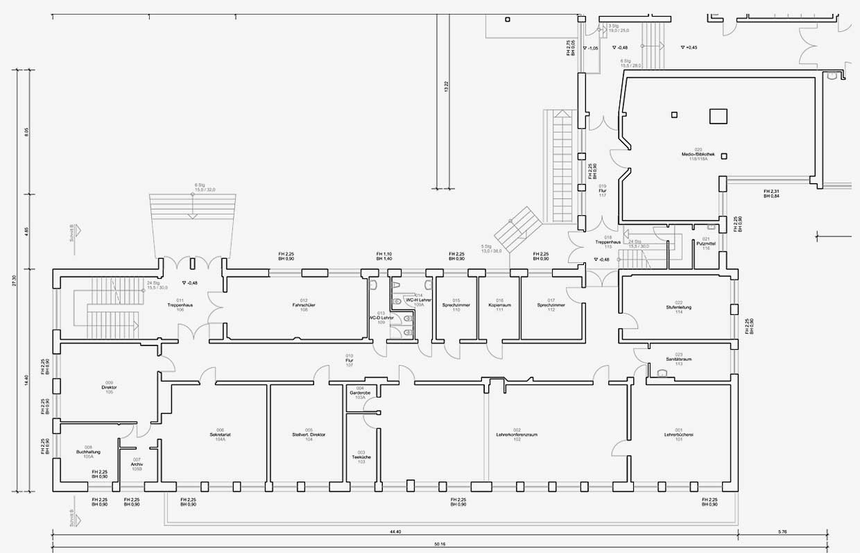
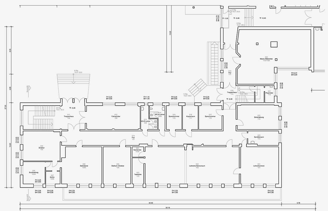
Kardinal von Galen Gymnasium Münster . Die Umbauarbeiten am KVG in Münster sind abgeschlossen. Auf einer Fläche von ca. 1300 qm wurde der Lehrer- und Verwaltungsbereich im laufenden Betrieb kernsaniert und neu gestaltet.

Fertigstellung . 2015
Auftrag . LPH 1-9
Bauherr . Bistum Münster